ReRoom

침실,
미니멀리스트
Original
Source Image
Uploaded
Generated(768x872)
source
1.95%
Result Images
Result Images
Result Images

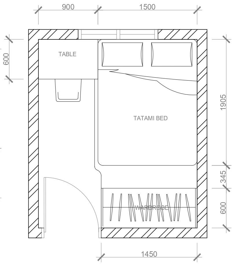
An incredibly lifelike, richly detailed, photorealistic aerial shot of a minimalist bedroom haven. The scene is illuminated by soft, diffused daylight filtering in from an unseen window, creating a serene and tranquil atmosphere. Captured with a wide-angle lens, emphasizing the clean lines and organized layout of the room, the photograph focuses on the inviting tatami bed, draped with crisp, neutral linens, and adorned with two plump pillows. To the left of the bed, a sleek 900mm x 600mm study table, made of light-colored wood, offers a functional workspace, with a hint of a desk lamp and perhaps a neatly placed notebook. Directly opposite the entryway, occupying the right-hand wall, is a spacious 1450mm x 600mm built-in wardrobe, its clean doors seamlessly integrated into the wall, hinting at ample storage within. The floor is a smooth, light-toned material, perhaps polished concrete or pale wood, contributing to the overall sense of calm and spaciousness. The composition is balanced, with the bed as the clear focal point, and the table and wardrobe acting as supportive elements that define the room's functionality. The depth of field is slightly shallow, drawing the viewer's eye to the bed and table, while the wardrobe recedes gently into the background, maintaining the room's uncluttered aesthetic.