

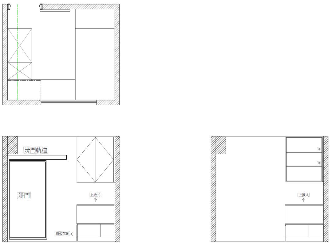
An incredibly lifelike, richly detailed, photorealistic floorplan photo of a Scandinavian sanctuary bedroom. The scene is illuminated by soft, natural light, creating a serene and minimalist atmosphere. Captured with a wide-angle lens, emphasizing the clean lines and functional design of the space. The primary focus is on a well-organized closet area featuring sleek, handleless cabinetry in a light wood finish, with crisp white shelving and drawers. A sliding door, with a subtle track visible above, hints at clever space-saving solutions, characteristic of Nordic design. The walls are a clean white, accented by subtle hatching indicating a textured finish, and the floor appears to be a light-toned wood or laminate, contributing to the airy, uncluttered feel. In one section, a larger, empty rectangular space suggests the main sleeping area, further enhanced by implied built-in storage solutions around its perimeter, all rendered with meticulous technical detail. The composition is balanced, showcasing a thoughtful layout that prioritizes both aesthetics and practicality, creating a peaceful and inviting retreat.